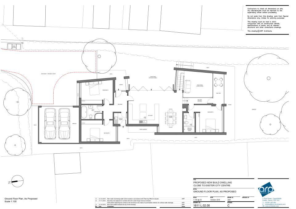
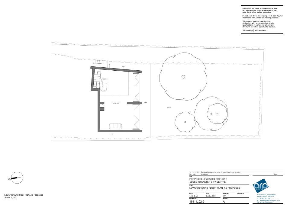
About this project
This proposed new build project close to the city centre was carefully designed to prevent the proposed house from overlooking any of the 25 neighbouring houses. The design was supported by the planning officers, but sadly the access to the site was deemed unsuitable by County Highways, due to the visability at the junction with the main road.






