About this project
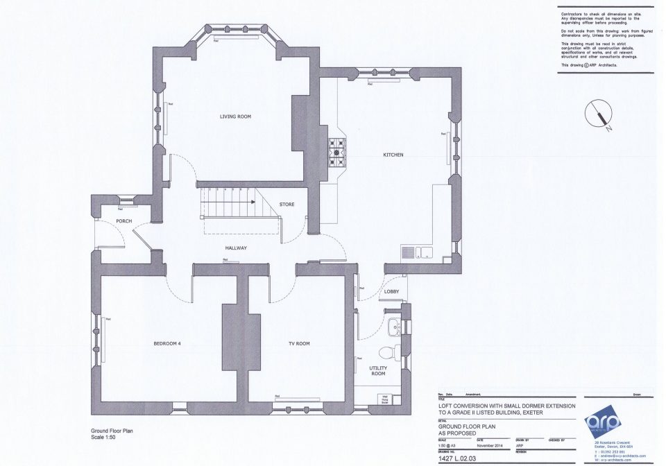
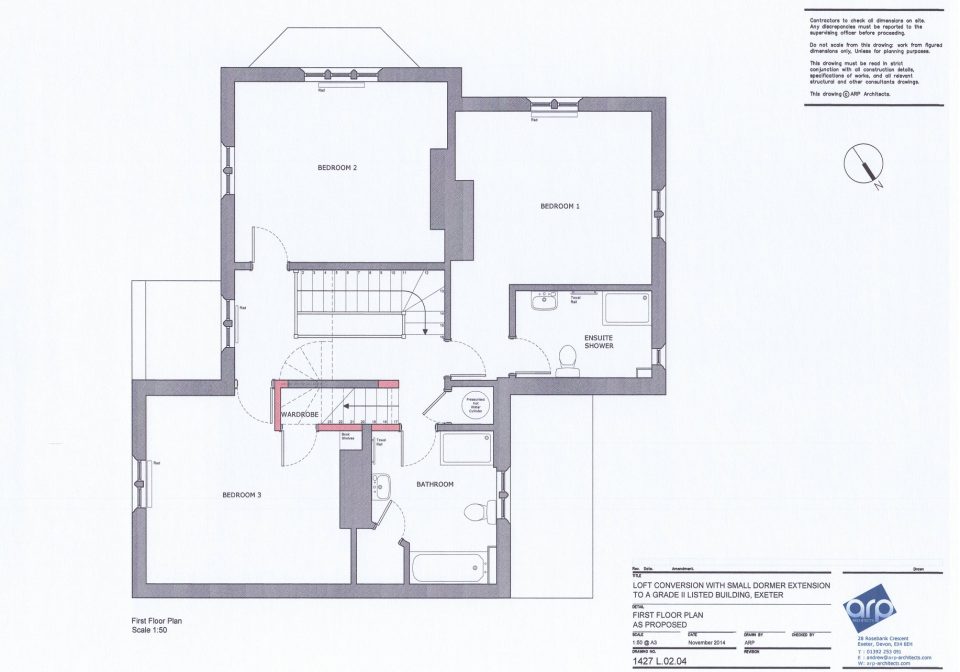
This beautifully proportioned Grade II Listed property (in a conservation area) has been transformed by the introduction of two additional bedrooms and a shower room within the converted loft space.
This beautifully proportioned Grade II Listed property (in a conservation area) has been transformed by the introduction of two additional bedrooms and a shower room within the converted loft space.
















