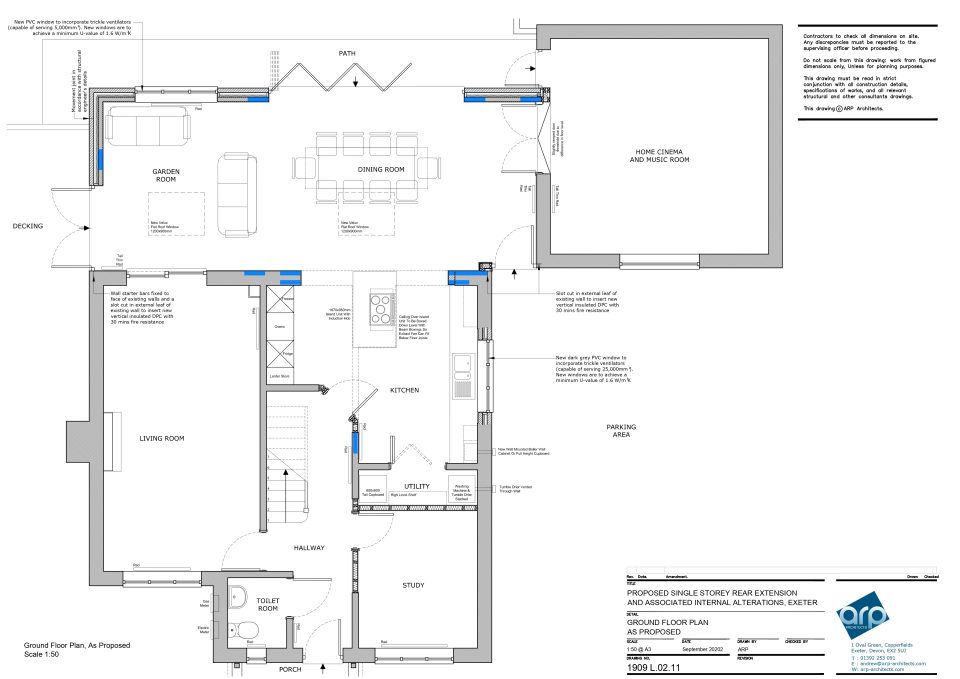
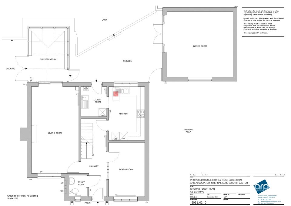
About this project
This detached house in Exeter had a previously converted double garage that was separate from the house and was therefore under used. The new garden room extension links the house to the converted garage and creates a fabulous open plan family space which flows into the remodelled kitchen.













