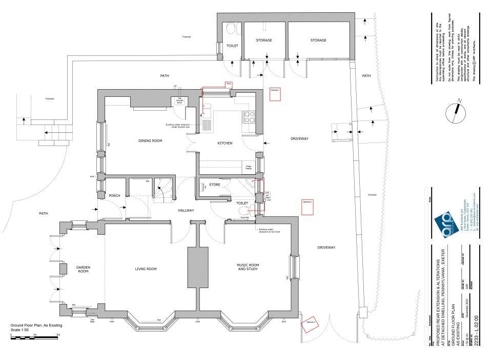
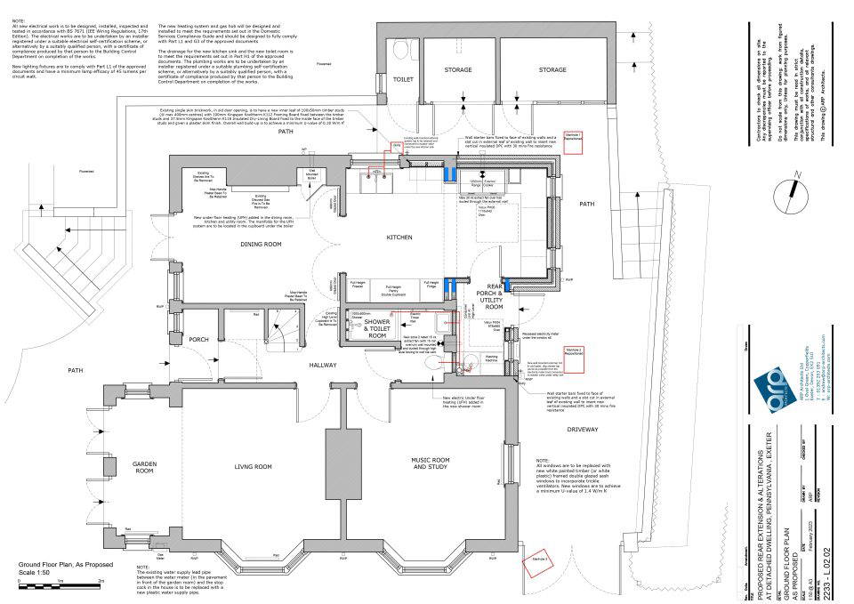
About this project
This beautiful period property suffered from having an extremely small kitchen and no utility room. There were also issues with the landscaping around the house. The project increased the accommodation on the ground floor, but also improved the links between the house and the garden.


















