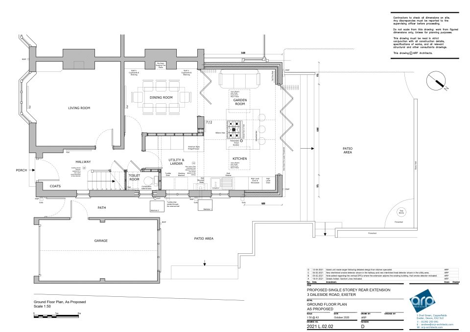
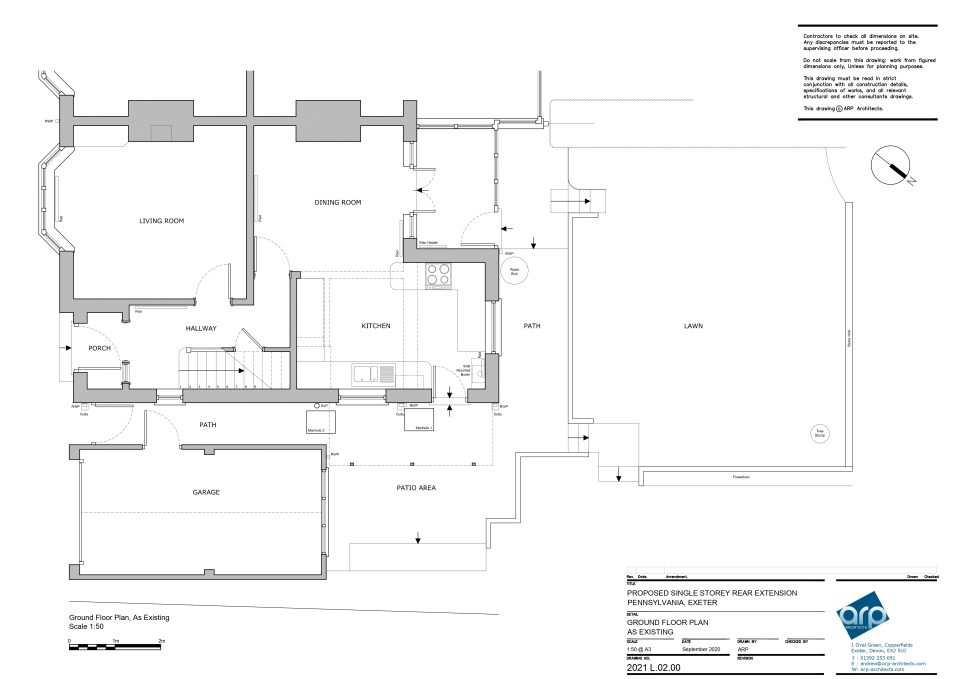
About this project
Originally, the house had a small single storey kitchen rear extension and an unusably small conservatory.
The new kitchen extension is only slightly deeper than the old kitchen, but the change to the house is massive and has had a huge impact on how the family use their spaces.














