About this project
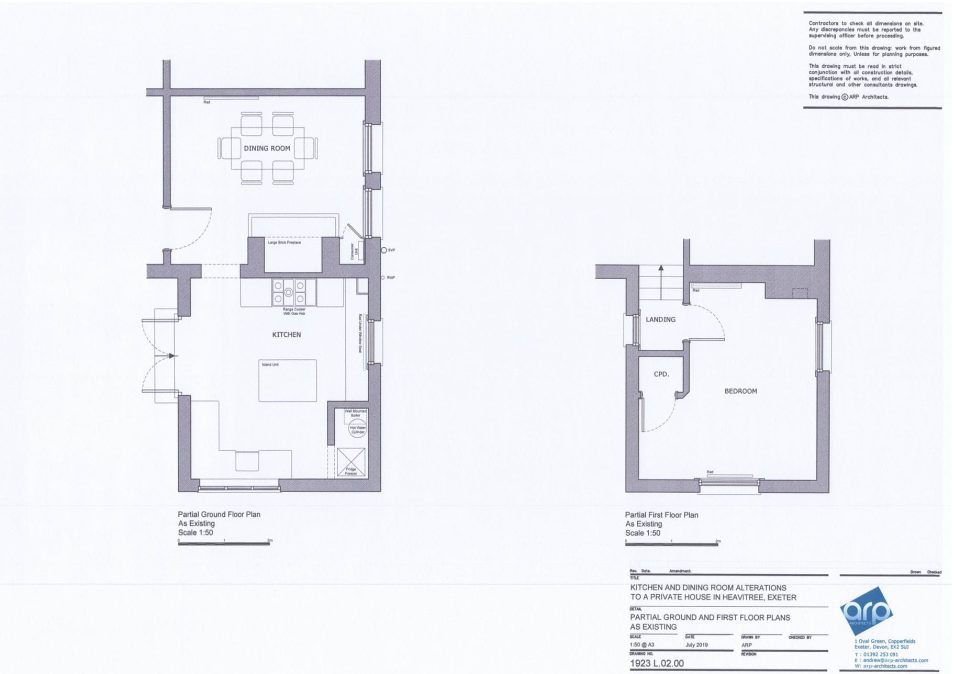
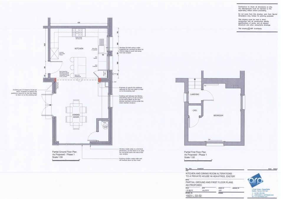
A relatively simple project to remodel the kitchen and dining room at a fabulous detached period property in Heavitree, Exeter.
The original floor plan meant that the spaces lacked a visual link with the garden and the rooms were dominated by a huge imposing fireplace.
By remodelling the two rooms, we have created a fantastic, bright and spacious kitchen and family room.















