About this project
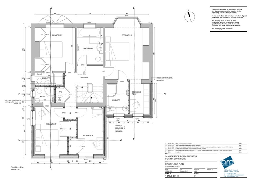
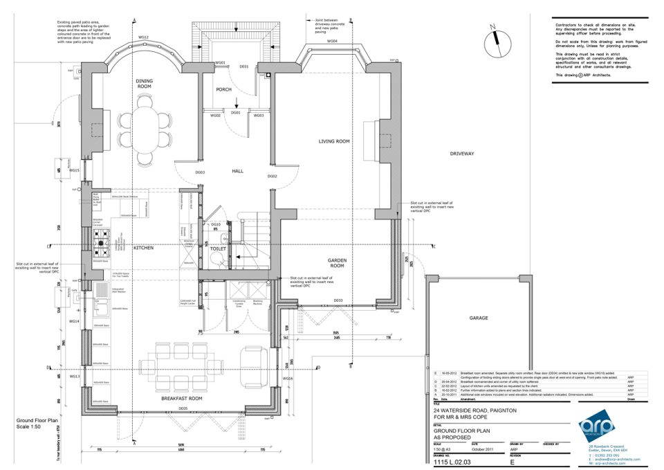
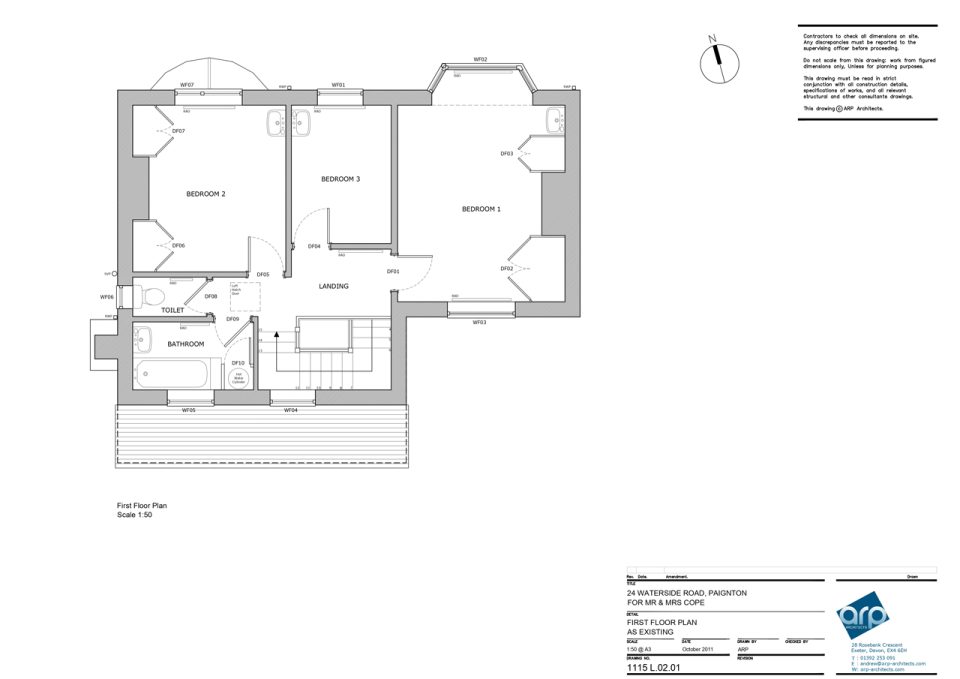
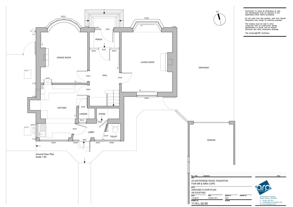
With a large, two storey rear extension and a loft conversion, the floor space of this house in Paignton was almost doubled.
With a large, two storey rear extension and a loft conversion, the floor space of this house in Paignton was almost doubled.
















