About this project
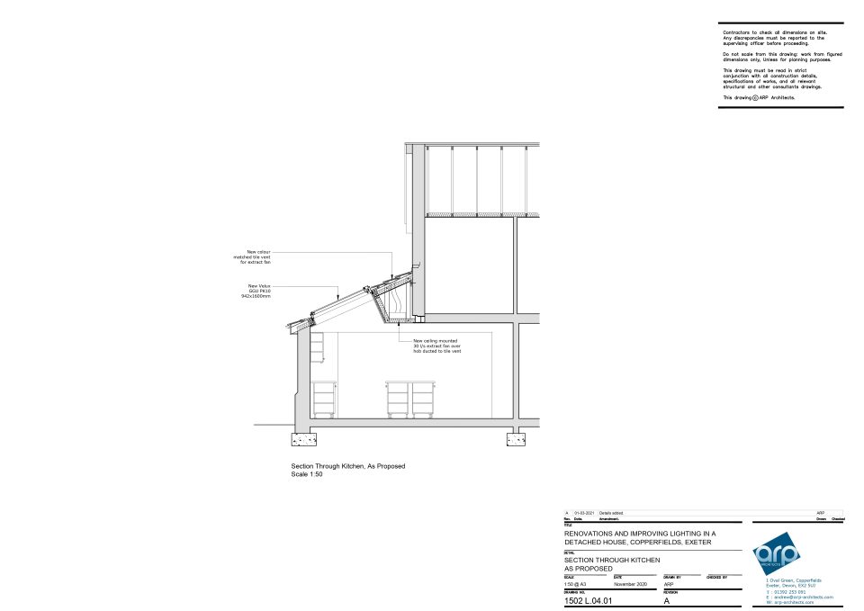
Bringing natural light into the stairwell, hallway and kitchen of this house has transformed the heart of the home and made the spaces light and airy.
Bringing natural light into the stairwell, hallway and kitchen of this house has transformed the heart of the home and made the spaces light and airy.












